Tomt i Vila do Bispo
Exklusiv mark för utveckling i hjärtat av Vicentina Coast Natural Park
En sällsynt möjlighet att förvärva prime mark med ett godkänt projekt för en lyxig turistutveckling i en av de vackraste och mest skyddade kustområdena i Portugal.
Beläget i den charmiga byn Hortas do Tabual, inom Sydvästra Alentejo och Vicentina Coast Natural Park, är denna mark perfekt för den som vill investera i ett hållbart och högklassigt turistmål.
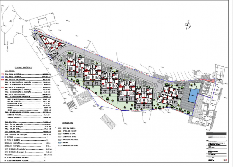
Det godkända utvecklingsprojektet inkluderar:
12 rymliga T1+1-enheter designade för komfort och modernt boende
Reception och restaurangområde för gäster att njuta av
Swimmingpool med omklädningsrum och fullständiga stödfaciliteter
Denna mark är idealiskt belägen endast 1,8 km från Zavial Beach, vilket ger enkel tillgång till den fantastiska kusten och naturen. Den berömda Rota Vicentina vandringsleden och cykelvägen passerar direkt genom fastigheten, vilket gör det till en perfekt plats för naturälskare och utomhusentusiaster.
Markyta: 2 920 m²
Godkänd byggnadsarea: 833,90 m²
Detta är en exceptionell möjlighet att köpa marken med ett godkänt projekt på en prime plats. Oavsett om du vill utveckla en unik lyxig turistresort, en fredlig reträtt eller ett miljövänligt bostadsområde, ger detta projekt en solid grund för att förverkliga din vision.
Missa inte denna unika möjlighet att investera i en av Portugals vackraste och mest exklusiva regioner!
Beläget i den charmiga byn Hortas do Tabual, inom Sydvästra Alentejo och Vicentina Coast Natural Park, är denna mark perfekt för den som vill investera i ett hållbart och högklassigt turistmål.
Det godkända utvecklingsprojektet inkluderar:
12 rymliga T1+1-enheter designade för komfort och modernt boende
Reception och restaurangområde för gäster att njuta av
Swimmingpool med omklädningsrum och fullständiga stödfaciliteter
Denna mark är idealiskt belägen endast 1,8 km från Zavial Beach, vilket ger enkel tillgång till den fantastiska kusten och naturen. Den berömda Rota Vicentina vandringsleden och cykelvägen passerar direkt genom fastigheten, vilket gör det till en perfekt plats för naturälskare och utomhusentusiaster.
Markyta: 2 920 m²
Godkänd byggnadsarea: 833,90 m²
Detta är en exceptionell möjlighet att köpa marken med ett godkänt projekt på en prime plats. Oavsett om du vill utveckla en unik lyxig turistresort, en fredlig reträtt eller ett miljövänligt bostadsområde, ger detta projekt en solid grund för att förverkliga din vision.
Missa inte denna unika möjlighet att investera i en av Portugals vackraste och mest exklusiva regioner!
Ladda ner detaljer om boendet
Fråga den här egenskapen
Detaljer email fastighets
Visa egenskapskarta
INFORMATION OM OBJEKTET:
Price:
€ 650,000
Referens:
BPA4317
Byggstorlek:
834 m2
Tomtstorlek:
2,920 m2
FASTIGHETEN HAR:
- Close To Beach
- Close To Town

.jpg)







